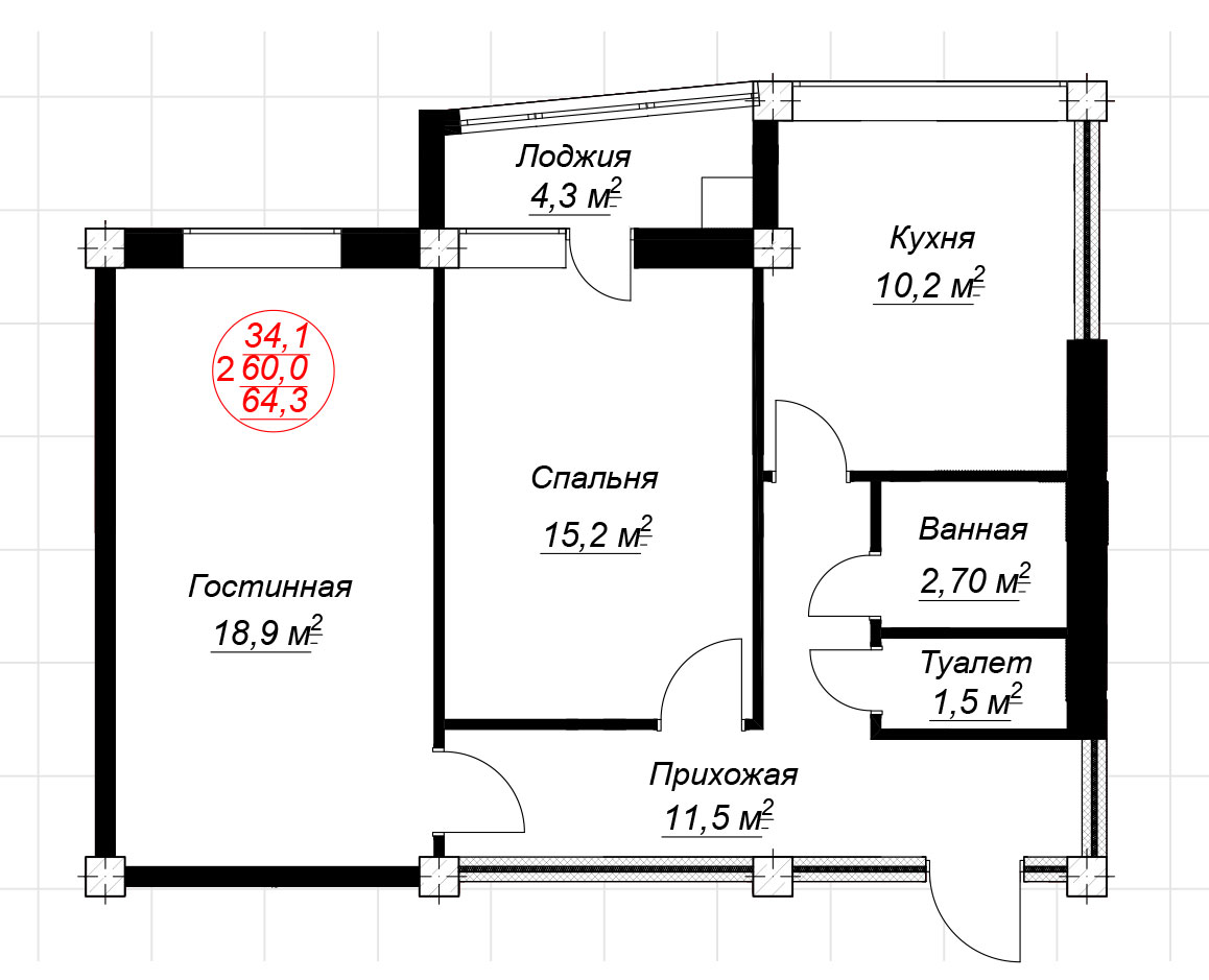
Продается 2-х комн. квартира, 61 кв.м., 4/9 эт
| Стоимость | 6 500 000 |
|---|---|
| Ремонт | Без отделки |
| Балкон | Балкон |
| Доля в квартире | Нет |
| Онлайн показ | не хочу |
| Статус Недвижимости Авито | Квартира |
| Право собственности | Посредник |
| Тип парковки | Подземная |
| Способ связи avito | По телефону и в сообщениях |
| Есть ли право собственности | Есть |
| Тип дома cian | Монолитный |
| Номер телефона для подключения функционала чатов. выгрузка | 89284113145 |
| Комнат в квартире | 2 |
| Площадь, кв.м. | 61 |
| Жилая площадь | 32 |
| Площадь кухни, кв.м. | 10.2 |
| Этаж | 4 |
| Этажность | 9 |
| Материал стен | Монолитный |
| Населенный пункт | Ессентуки |
|---|---|
| Улица | улица Никольская |
| Номер дома | 21к6 |
Наши клиенты становятся нашими друзьями.
Уютная и светлая двушка ,квартира с лучшей планировкой в новом современном жилом комплексе!
Современный комбинированный фасад, разработанный по индивидуальному проекту.
Продуманные планировочные решения квартир разработаны с учётом эргономики жилого пространства.
Класс энергоэффективности А (очень высокий).
О доме: Надежность, долговечность и безопасность жилья,высокое качество отделочных материалов,застекленные лоджии.
Две спальни и кухня-столовая,окна выходят во двор на зеленую зону. Комнаты на две стороны.
Индивидуальное отопление и горячее водоснабжение от газового двухконтурного котла-это комфорт и экономия ваших средств-счета за коммуналку будут радовать
Раздельный санузел-дополнительный комфорт !
Квартира очень комфортная, благодаря расположению в середине дома и первому этажу. Окна выходят на зеленую зону.
Бесшумные пассажирские лифты Otis с отделкой из нержавеющей стали.
Качественные и безопасные входные двери
Инфраструктура:
Рядом с домом очень развитая инфраструктура — остановки общественного транспорта в шаговой доступности, два действующих детских садика , три школы (9, 10,4), в ЖК через дорогу есть подземный паркинг , в радиусе 50-200 м- два фитнес центра , магазины, супермаркеты, кафе, закусочные, кинотеатр Искра в шаговой доступности.
Прогулочная зеленая зона на берегу реки Подкумок.
ЗВОНИТЕ СЕЙЧАС ,ОРГАНИЗУЕМ БЫСТРЫЙ ПРОСМОТР, Ессентуки 2 комн., общ. пл. 64 кв.м., жил.пл. 34 кв.м., комнаты 18.9/15.2, кухня 10 кв.м., окна улица/двор, санузел раздельный, застекленный балкон



















































